Baerz & Co is een landelijk samenwerkingsverband van zorgvuldig geselecteerde boutique luxury makelaars. Samen vormen wij één netwerk, met één gedeeld aanbod. De woningen die u op onze website ziet, zijn afkomstig van alle aangesloten kantoren binnen Baerz & Co. Daardoor is niet ieder object rechtstreeks door ons kantoor in verkoop, maar door een gespecialiseerde collega binnen ons netwerk. Heeft u een woning gevonden die u aanspreekt en wilt u meer informatie? Dan brengen wij u graag persoonlijk in contact met de betreffende verkoopmakelaar, zodat u direct en zorgvuldig wordt begeleid.

'S-HERTOGENBOSCH
Achter De Boogaard 2 - 5211 DG
Netherlands

Eric Tiebosch profile image
Eric Tiebosch
Owner / Real Estate Agent
€850,000 k.k.
Living Area
146m2
Plot Size
N/A
Bedrooms
4

Description

Groot appartement in hartje centrum met vijf kamers, een eigen entree/fietsenberging en een indrukwekkend dakterras.

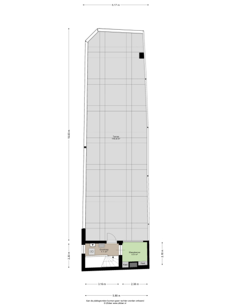
Dit bijzondere pand is je vast wel eens opgevallen als je door de Vughterstraat wandelde. Waarschijnlijk heb je toen ook al met verbazing naar dit enorme dakterras gekeken. Op “het dak van de stad” heb je hier een daktuin van ca. 113 m2. Niet alleen vanuit dit terras, maar ook vanuit de woning is er dat weidse uitzicht en heel veel licht. Naast de grote woonkamer met open keuken zijn er vier slaapkamers en natuurlijk een luxe badkamer. Je stapt met je voordeur meteen je eigen hal in waar je zelfs vier fietsen prima in kwijt kunt. Heel compleet, smaakvol en ruim dus en mét dat uitzonderlijke dakterras.

Vraag snel een bezichtiging aan op Funda of bel ons voor meer informatie op: (073) 612 22 25.

Features

Transfer of ownership
Asking Price
€ 850.000 k.k.
Status
verkocht onder voorbehoud
Acceptance
in overleg
Construction
Kind of house
Bovenwoning
Building type
appartement
Construction period
1968
Energy rating
D
Roof type
plat dak
Bedrooms
4
Bathrooms
1
Surface Areas And Volume
Living Area
146 m2
Other indoor space
0 m2
Exterior space attached to the buildinge
113 m2
Volume in cubic meters
481 m3
Facilities
In centrum
Baerz & Co Property Brochure

Brochure

Floor Plans

De Huyzerij Makelaardij

Kruisstraat 2
5211 DV 's-Hertogenbosch

eric@dehuyzerij.nl
+31 736122225

www.dehuyzerij.nl

Information / Viewing request

Eric Tiebosch profile image
Eric Tiebosch
Owner / Real Estate Agent

Buying a Luxury Property in 's-Hertogenbosch

's-Hertogenbosch offers a refined blend of history, culture, and contemporary living, attracting a globally minded community who value privacy, aesthetics, and seamless services within a vibrant, authentic Dutch environment.