Ons kantoor is lid van Baerz & Co Luxury Homes; een internationaal platform dat exclusieve woningmakelaars met elkaar verbindt. Neem contact op met ons secretariaat voor meer informatie over het landelijke aanbod, waarvan u hieronder een selectie kunt bekijken.

Grachtenpand for sale in LEIDEN

LEIDEN Rapenburg 45 - 2311 GG The Netherlands


Wim Graal RM profile image
Wim Graal RM
Real Estate Agent
+31 715161000
info@graalmakelaardij.nl

Graal Makelaardij

Living area
345m2
Plot size
218m2
Bedrooms
5

Description

Unique fully renovated monumental canal house at prime location, with a beautiful sunny garden

As early as the 17th and 18th centuries, the Rapenburg was praised as one of the most beautiful and distinguished canals in the Netherlands. Even today, the Rapenburg, with its many monumental buildings and bridges, is generally considered the most beautiful canal in Leiden.

Rapenburg 45 is a 17th-century monumental canal house located in one of the most prominent locations in Leiden. The property offers a living area of ??no less than 345 m², in combination with a beautifully landscaped city garden with complete privacy. The property is located opposite the Rijksmuseum van Oudheden and a stone's throw from Leidens famous 'Hortus Botanicus'. Furthermore, everything that makes living in the city center of Leiden so pleasant is within walking and cycling distance; shops, entertainment venues, the theater, museums, etc.

The two neighboring properties are occupied by private individuals, which means the location is quiet and offers complete privacy.

Since purchasing this property in 2010, the current owners have completely renovated and made the property more sustainable to a very high standard; even a large part of all the windows have recently been replaced with the latest vacuum glass, which means that this Rijksmonument meets the highest level of quality and comfort. The interior of the house still contains many beautiful style features such as beautiful beamed ceilings, a selection of Delft Blue tiles in the hallway and a unique monumental staircase to the first floor.

Fun fact: this monument has a series of interesting former residents, not least Princesses Beatrix and Margriet, during their studies in Leiden.

Good to know: the sellers own parking places in an underground garage located at some 1.400m. from the house which they will consider to sell.
LAYOUT

Ground floor:
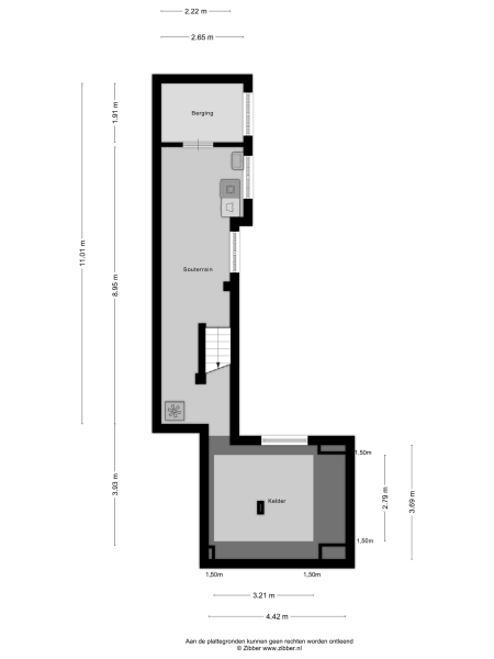
Spacious and bright entrance. Door to the kitchen. This is a beautiful and very atmospheric space with 2 high windows on the canal side and French doors to the back garden. The luxurious Bulthaup kitchen is of course equipped with all the usual appliances. The wide gas fireplace on the garden side adds extra atmosphere to the dining and sitting area of ??this space. The long hallway with Delft Blue tiles on both sides leads to a small hall with access to the garden and a staircase to the basement. This is currently used as a laundry room. On the street side, there is a vaulted cellar for storage on this level. Back to the hallway, here you will find another guest toilet and at the end of the hallway a multifunctional room.

First floor:
A monumental staircase leads to the first floor. In the back house there is a separate toilet and a bedroom with modern bathroom en suite. At the front you will find the very spacious and bright living room with a sitting room around the fireplace on the garden side and at the front (3 windows wide) a nice bright living room with a beautiful view of the canal and the city.

Second floor:
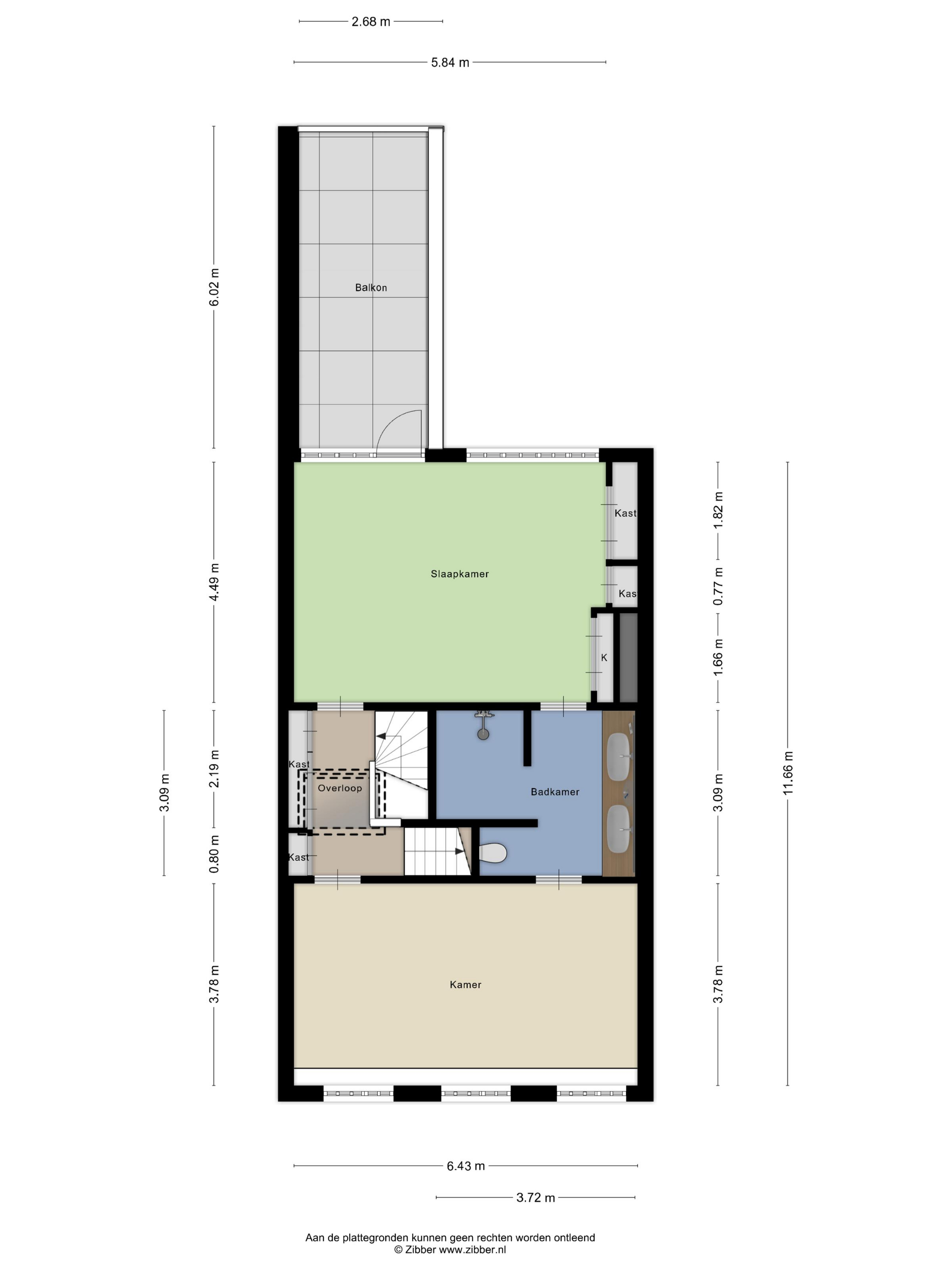
Landing with wardrobe. At the rear the very spacious master bedroom with private roof terrace, wardrobe and bathroom en suite. This bathroom is also connected to the spacious room at the front. This is currently used as a study but is also very suitable as a bedroom.

Third floor:
Landing, bathroom with shower, toilet and bedroom. Very spacious and attractive bedroom at the front with dormer window and built-in closet. Here is also a hatch with loft ladder for access to the large attic space with, among other things, the setup for the central heating. Furthermore, at the rear is one smaller bedroom with dormer window.

Garden:
The garden is beautifully landscaped and faces west. There are several seating areas for both sun and shade and it is always striking how quiet it is at the rear of such a building. Here you can relax wonderfully or dine with friends in the garden.
All in all a very special and unique object. Definitely worth your viewing.

Features

Transfer of ownership
price
€ 2.995.000 k.k.
Status
beschikbaar
Acceptance
in overleg
Construction
Kind of house
Grachtenpand
Building type
tussenwoning
Construction period
1660
Roof type
samengesteld dak
Bedrooms
5
Bathrooms
3
Surface Areas And Volume
Living area
345 m2
Other indoor space
28 m2
Exterior space attached to the building
16 m2
Volume in cubic meters
1322 m3
Plot size
218 m2
facilities
Mechanische ventilatie
Alarminstallatie
Tv kabel
Rookkanaal
Aan water
Aan rustige weg
In centrum
Vrij uitzicht
Aan vaarwater
Baerz & Co Property Brochure

Brochure

Information / Viewing request

Videos

Photos

Floor Plans